Detalles de la propiedad
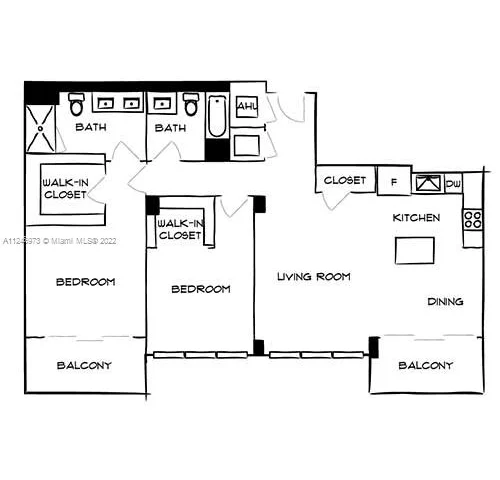
Disponible el 09/20. Las fotos pueden ser de otro piso, pero son la misma línea. Esta unidad 2/2 tiene dos balcones, patio, jardín y vistas a la bahía. Cuenta con pisos y encimeras de mármol, cocina moderna con electrodomésticos de acero inoxidable, puertas de vidrio correderas de piso a techo y entrada privada en ascensor. Las instalaciones incluyen un gimnasio, spa, piscina frontal de estilo resort con cabañas, restaurantes y más.
Características
Interior
Dormitorios y Baños
- Dormitorios: 2
- Baños: 2
- Baños completos: 2
Pisos
- Pisos: Madera
Calefacción
- Características de calefacción: N/A
Enfriamiento
- Tiene enfriamiento: Sí
- Características de enfriamiento: Aire central
Electrodomésticos
- Electrodomésticos incluidos: N/A
Otras características interiores
- Tour virtual: Enlace
Propiedad
Propiedad
- Características de la piscina: Enterrada, Bañera de hidromasaje
- Piscina privada: No
- Descripción de la vista: Ninguno
Otra información de la propiedad
- Número de parcela: 02-32-33-007-0032
- Adjunto a otra estructura: No
Construcción
Tipo y estilo
- Tipo de hogar: Condo/Co-Op/Annual
Información del material
- Construcción: Construcción de bloques de concreto
Condición
- Año de construcción: 0
Comunidad y vecindario
Ubicación
- Región: Miami Beach
HOA y financiamiento
HOA
- Tiene HOA: No
- Cuota de HOA: N/A
- Servicios incluidos: Sala de actividades, Bar, Piscina comunitaria, Sala de ejercicios, Gestión in situ, Spa/Tina de hidromasaje
Otra información financiera
- Compensación de la agencia del comprador: N/A
La información de IDX se proporciona exclusivamente para uso personal y no comercial, y no se puede utilizar para ningún otro propósito que no sea identificar propiedades potenciales que los consumidores puedan estar interesados en comprar. La información se considera confiable pero no está garantizada. La oferta de compensación del corredor de la lista se realiza solo a los participantes de la MLS donde se archiva la lista.
Invierte en Miami
Déjanos tus datos y recibe asesoría personalizada de cómo invertir en Miami
