Property details
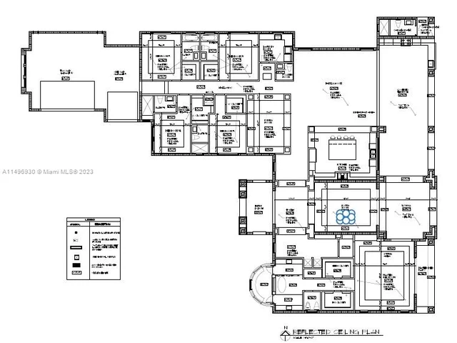
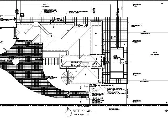
This Exceptional Property, Nestled On A Lot Of Over 1 Acre, Is A Rare Gem Offering Approved Plans For A Magnificent 5-Bed, 6-Bath Home With Over 6500 Sq Ft Of Opulent Construction. The Proposed Residence Boasts A Grandeur Of Space With Ceilings Of 12 Feet, Creating An Airy And Spacious Ambiance Throughout. Abundant Windows Strategically Placed Throughout The Home Ensure An Infusion Of Natural Light, Creating An Inviting And Warm Atmosphere. Currently, The Property Hosts A Charming Home That Is Leased On A Month-To-Month Basis, Providing A Steady Stream Of Income While You Plan For The Construction Of Your Dream Home. This Investment Opportunity Allows You To Capitalize On Immediate Returns While Envisioning The Realization Of A Bespoke Residence. Plan Approval Is Still In Process.
Facts & Features
Interior
Bedrooms & Bathrooms
- Bedrooms: 5
- Bathrooms: 6
- Full bathrooms: 6
Flooring
- Flooring: Ceramic Floor
Heating
- Heating features: Central
Cooling
- Has cooling: Yes
- Cooling features: Central Air
Appliances
- Appliances included: N/A
Other interior features
- Virtual tour: Link
Property
Property
- Pool features: N/A
- Exterior features: Open Balcony
- Patio & Porch details: Open Balcony
- View description: None
Other property information
- Parcel number: 30-40-28-004-0812
- Attached to another structure: No
Construction
Type & style
- Home type: R30-No Pool/No Water
Material information
- Construction: CBS Construction
Condition
- Year built: 2024
Community & Neighborhood
Location
- Region: Miami
HOA & Financial
HOA
- Has HOA: No
- HOA fee: N/A
- Amenities included: None
Other financial information
- Buyer agency compensation: N/A
Nearby properties
$2,200,000
5 be, 7 ba,
Home of type Single Family in 52nd Ter, Miami FL
ZIP code 33165
$5,470,000
5 be, 6 ba,
Home of type Single Family in 95th Ct, Miami FL
ZIP code 33176
$3,250,000
5 be, 6 ba,
Home of type Single Family in 79th, Miami FL
ZIP code 33143
$4,595,000
5 be, 6.5 ba, area of 6991 sqft
Home of type Single Family in 87th Ave, Miami FL
ZIP code 33176
$2,850,000
5 be, 6 ba, area of 4081 sqft
Home of type Single Family in 98th St, Miami FL
ZIP code 33156
$4,278,000
5 be, 6 ba,
Home of type Single Family in 73rd Pl, Miami FL
ZIP code 33143
IDX information is provided exclusively for personal, non-commercial use, and may not be used for any purpose other than to identify prospective properties consumers may be interested in purchasing. Information is deemed reliable but not guaranteed. The listing broker's offer of compensation is made only to participants of the MLS where the listing is filed.
Invest in Miami
Leave us your details and receive personalized advice on how to invest in Miami






